Дом 181.2 кв.м на участке 4 сот

Супсех, ул Космонавта Волкова

Нас. пункт Супсех
Код объекта 56181
Назначение ИЖС
Всего комнат 4
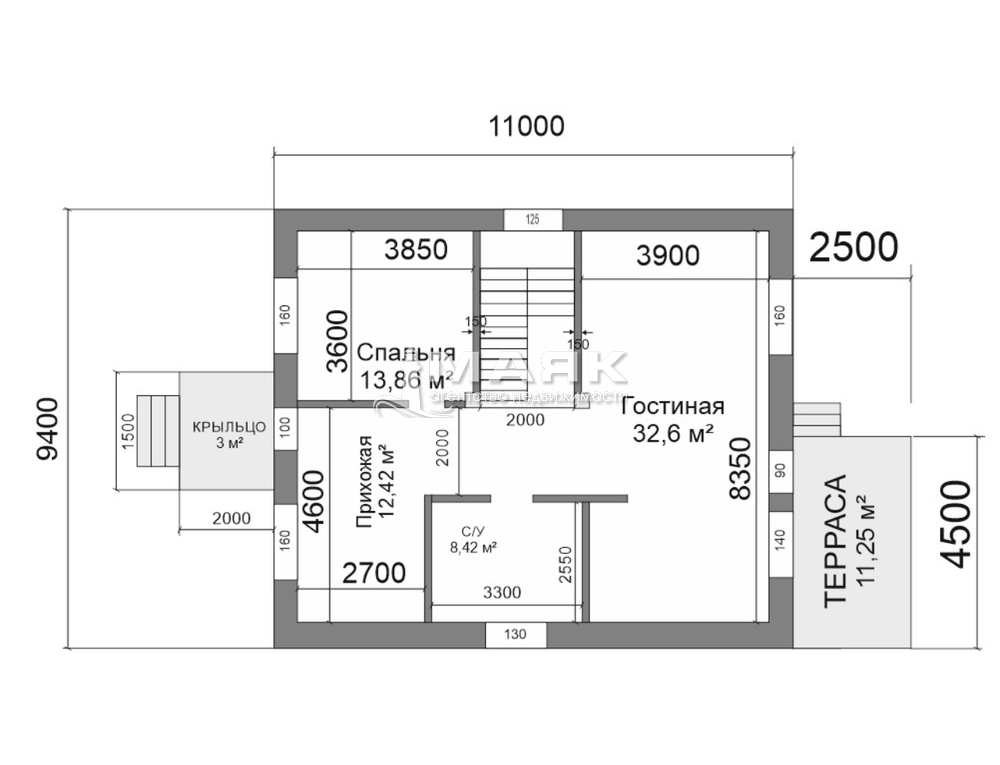
Площадь (м2) 181.2 / 63.12 / 32.6
Площадь участка 4 сот.
Фасад участка 15 м.
Этажей 2
Отопление нет
Газоснабжение по меже
Водоснабжение центральное
Канализация центральная
Ипотека да
Дата 01.02.2026

Описание

Добротный дом в Анапе за 10 950 000. Подходит под ипотеку. Дом введён в эксплуатацию. ИЖС, Прописка, коммуникации, тихое ровное место.
Дом 181,2 м² (+ 30 м² мансардная эксплуатируемая крыша) на участке 4 сотки ИЖС. Участок и дом НЕ в долях, адрес относится к администрации с.Супсех, а НЕ к товариществам.
Предчистовая отделка. Система тёплый пол. Стяжка. Штукатурка. Остаётся выбрать обои, ламинат, потолок и плитку в сан. узел, а на отделочные работы отвести 45 дней. Всё этапы строительства фиксировались на фото и видео.
Газ, Центральная канализация, электричество (15 кВт), вода – скважина.
Дорога до пяти метров шириной, отсыпана в 2 слоя, с трамбовкой на каждом этапе.
По фасаду массивный кирпичный забор.
Площадка перед домом утрамбована, забетонирована, с укладкой арматуры.
Участок с видом на горы и поле. Рядом остановка, школа, детский сад. В спальной части поселка, где нет шумных туристов!
Звоните, спрашивайте, покупайте !!!

Заявка на покупку, продажу недвижимости

Полетаев Сергей

+7 918 670-14-14

Заинтересовал объект? Оставьте нам свою контактную информацию, мы перезвоним и расскажем подробнее

Похожие объекты

Продажа

Дом 122 кв.м на участке 3.6 сот

Супсех, ул Никольская
10 500 000 руб.
Подробнее
Продажа

Дом 120 кв.м на участке 4 сот

Супсех, ул Космонавта Волкова
10 500 000 руб.
Подробнее
Продажа

Дом 122 кв.м на участке 3.5 сот

Супсех, ул Пушкина
12 000 000 руб.
Подробнее
Продажа

Дом 122.4 кв.м на участке 3 сот

Супсех, ул Гагарина
11 000 000 руб.
Подробнее
Продажа

Дом 125 кв.м на участке 3 сот

Супсех, ул Леонова
10 500 000 руб.
Подробнее

Мы поможем вам с выбором!