Гостиница 18 номеров

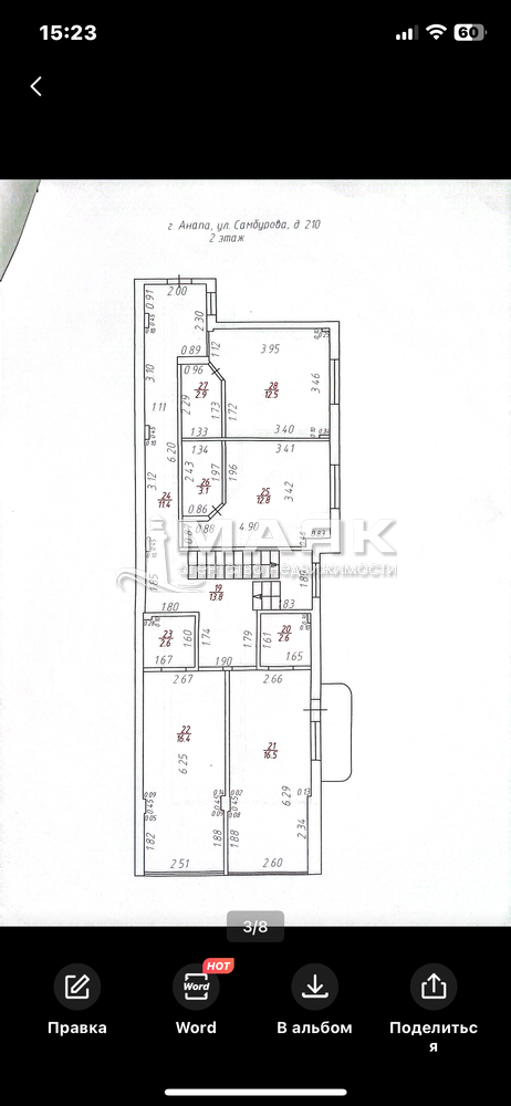
Анапа, ул Самбурова

Нас. пункт Анапа
Код объекта 58563
Всего комнат 18
Площадь (м2) 436 / - / -
Площадь участка 1.47 сот.
Этажей 4
Дата 24.01.2026

Описание

Гостиница в центре города Анапа, Краснодарский край, улица Самбурова.
В продаже действующая гостиница.
4 этажа.
Номерной фонт - 18.
Земельный участок - 147м2 (отдельный кадастр).
Фасад 10 метров.
Все городские коммуникации.
Рентабельность 8 лет.
Работа круглый год.
Агент профессионал Александр Зозуля, предоставит дополнительную информацию. Так же альтернативные объекты недвижимости в ассортименте, в любом диапазоне цены.

Заявка на покупку, продажу недвижимости

CENTR COLL

+7 918 670-14-14

Заинтересовал объект? Оставьте нам свою контактную информацию, мы перезвоним и расскажем подробнее

Похожие объекты

Продажа

Гостиница 22 номеров

Анапа, ул Самбурова
45 000 000 руб.
Подробнее
Продажа

Гостиница 28 номеров

Анапа, Уральский проезд
45 000 000 руб.
Подробнее
Продажа

Гостиница 11 номеров

Анапа, ул Терская
46 000 000 руб.
Подробнее
Продажа

Гостиница 11 номеров

Анапа, ул Терская
46 000 000 руб.
Подробнее
Продажа

Гостиница 35 номеров

Анапа, ул Кати Соловьяновой
50 000 000 руб.
Подробнее

Мы поможем вам с выбором!