Дом 228.3 кв.м на участке 6.5 сот

Анапа, ул Владимира Будзинского

Нас. пункт Анапа
Код объекта 15567
Назначение ИЖС
Всего комнат 4
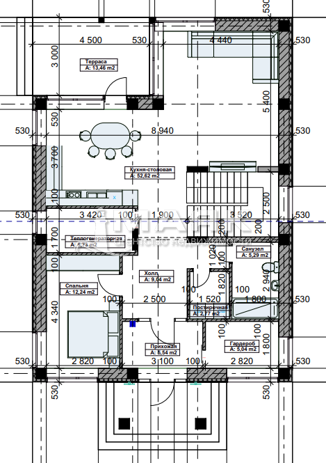
Площадь (м2) 228.3 / 61.3 / 56.2
Площадь участка 6.5 сот.
Фасад участка 22 м.
Этажей 2
Отопление инд. газовое
Газоснабжение ТУ
Водоснабжение центральное
Канализация центральная
Ипотека нет
Год сдачи 2020
Дата 14.07.2022

Описание

Продам двухэтажный котедж в современном стиле 228.3 кв.м.

Строительство выполняется по новейшим технологиям - из керамзитобетонных блоков, утеплитель базальтовая вата, облицовка- качественный короед.

При строительстве дома соблюдены все строительные нормы, произведена инженерная подготовка участка.

Дом сдается в предчистовой отделке, стены оштукатурены под маяки и готовы для покраски или поклейке обоев.

Смонтирована эл.проводка, в гостинной и помещениях общего пользования устроен теплый водяной пол, сделана разводка холодной и горячей воды.

Выполнена песчано-цементная стяжка пола, на которую можно укладывать плитку и ламинат.

Центральные коммуникации и газовое отопление (ТУ на газ).

Парковка на 2 машины во дворе + парковка рядом с домом.

Полностью благоустроенная территория.

ПРОДУМАННАЯ ПЛАНИРОВКА

— Большая кухня-гостиная с выходом на уютную террасу.

— 4 комнаты с гардеробными.

— Удобная постирочная и котельная

— тёплые полы

Локация идеальна для проживания и сдачи в аренду.

Находится в 15 минутах от Благоустроенного песчаного пляжа.

Заявка на покупку, продажу недвижимости

CENTR COLL

+7 918 670-14-14

Заинтересовал объект? Оставьте нам свою контактную информацию, мы перезвоним и расскажем подробнее

Похожие объекты

Продажа

Дом 240 кв.м на участке 3.78 сот

Анапа, ул Новороссийская
26 990 000 руб.
Подробнее
Продажа

Таунхаус 129.4 кв.м на участке 2 сот

Анапа, ул Таманская
24 000 000 руб.
Подробнее
Продажа

Дом 126 кв.м на участке 5 сот

Анапа, ул Ленина
25 000 000 руб.
Подробнее
Продажа

Дом 284 кв.м на участке 6 сот

Анапа, ул Островского
25 000 000 руб.
Подробнее
Продажа

Дом 205 кв.м на участке 5 сот

Анапа, ул Адмирала Серебрякова
28 000 000 руб.
Подробнее

Мы поможем вам с выбором!