Дом 123 кв.м на участке 2.5 сот


Нас. пункт
Код объекта 59955
Назначение ИЖС
Всего комнат 4
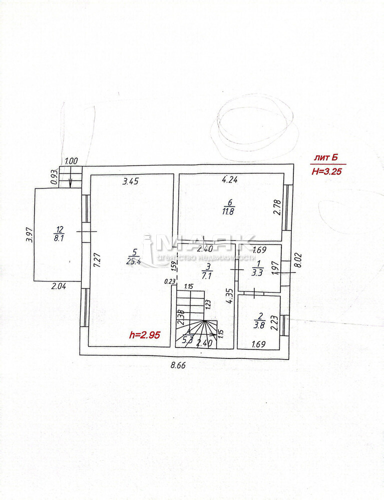
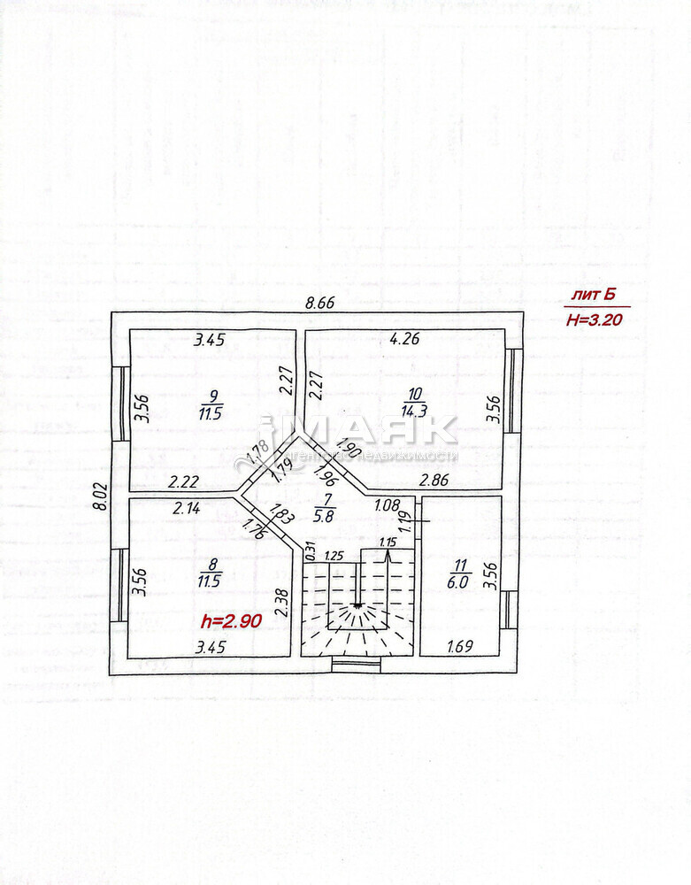
Площадь (м2) 123 / 70 / 30
Площадь участка 2.5 сот.
Этаж 1
Этажей 2
Материал дома кирпич
Газоснабжение центральное
Водоснабжение центральное
Канализация центральная
Электроснабжение есть
Санузел 2
Дата 28.12.2025

Описание

Арт. 126500152
Продаю дом в Супсехе город Анапа.
Площадь участка 2,5 сотки в долях по 1/2 с соседом.
Дом 8*8 в двух этажах
Кирпич
С ремонтом.
4 комнаты и большая кухня столовая.
ЦЕНТРАЛЬНЫЕ вы не ослышались канализация городская, волда городская, газ и электричество 15 квт.
На первом этаже кухня одна комната, прихожая и душевая.
Второй три изолированные комнаты и ванная.
Александр Зозуля.
Комиссия платится отдельно.

Заявка на покупку, продажу недвижимости

Зозуля Александр

+7 918 670-14-14

Заинтересовал объект? Оставьте нам свою контактную информацию, мы перезвоним и расскажем подробнее

Мы поможем вам с выбором!