Одноэтажный жилой дом с подвалом и гаражом, проект C02

Площадь застройки 180 м²
Стоимость строительства 7 020 000  руб.
Цена за м² 39 000  руб.
Комплектация Базовая

Приведенные расчеты по кредитным взносам и платежам являются предварительными. Для точного определения ставок по кредиту обратитесь, пожалуйста, к менеджерам нашей компании.


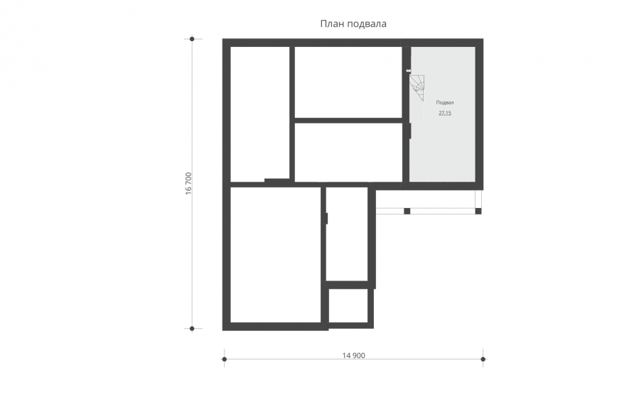
  • Одноэтажный жилой дом с подвалом с размерами здания 16,72 х 14,92 м. Фундамент - ленточный монолитный ж/б под несущими стенами. Наружные стены - газобетонный блок с отделкой штукатуркой. Внутренние стены - газобетонный блок Перегородки - гипсовы блок. Пол подвала и частично пол 1 этажа - пол по грунту, пол над одвалом - онолитная ж/б плита; чердачное перекрытие - деревянные балки. Крыша многоскатная. Кровля – битумная черепица. Окна — металлопластиковые.
  • Характеристики проекта

  • Общая площадь  180,5 кв.м
  • Жилая площадь  85,5 кв.м
  • Размеры дома  16,7 x 14,9 м
  • Высота здания  6,4 м
  • Количество комнат  4
  • Количество спален  3
  • Цокольный этаж  есть
  • Гараж  есть
  • Отделка  штукатурка
  • Материал стен  пеноблок / газобетон
  • Фундамент  ленточный
  • Перекрытия  балки, монолитное

Мы поможем вам с выбором!