1 ЭТАЖНЫЙ ДОМ С ТЕРРАСОЙ, проект А002

Площадь застройки 87 м²
Стоимость строительства 3 392 999  руб.
Цена за м² 39 000  руб.
Комплектация Базовая

Приведенные расчеты по кредитным взносам и платежам являются предварительными. Для точного определения ставок по кредиту обратитесь, пожалуйста, к менеджерам нашей компании.


 

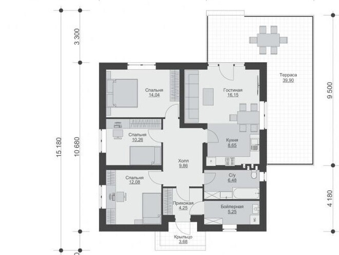
  • Одноэтажный дом с террасой, 3 спальнями и планкеном Проект одноэтажного дома с террасой, 3 спальнями и отделкой штукатуркой и планкеном с размерами здания 10,68х10,58 м. Фундамент - монолитная ж/б плита под всей площадью дома (на поверхности грунта). Наружные стены здания - газобетонный блок с утеплением минеральной ватой и отделкой штукатуркой / планкеном. Внутренние стены здания - газобетонный блок. Перегородки здания - газобетонный блок. Пол этажа - пол по монолитной ж/б плите. Чердачное перекрытие - деревянные балки с теплошумоизоляцией в межбалочном пространстве. Крыша - четырехскатная. Кровля - металлочерепица. Окна — металлопластиковые.
  • Характеристики проекта

  • Общая площадь 87.02 Цокольный этаж нет Жилая площадь 52.53 Гараж нет Размеры дома 10.68 x 10.58 м Мансарда нет Количество комнат 4 Материал стен Пеноблок / Газобетон Количество спален 3 Отделка штукатурка, планкен Дополнительно Терраса, Четырехскатная крыша Прочее - Планы помежений Первый этаж Прихожая - 4,25 м2 Холл - 9,86 м2 Спальня - 12,08 м2 Спальня - 10,26 м2 Спальня - 14,04 м2 Гостиная - 16,15 м2 Кухня - 8,65 м2 С/у - 6,48 м2 Бойлерная - 5,25 м2Окна — металлопластиковые. Характеристики проекта Общая площадь 87.02 Цокольный этаж нет Жилая площадь 52.53 Гараж нет Размеры дома 10.68 x 10.58 м Мансарда нет Количество комнат 4 Материал стен Пеноблок / Газобетон Количество спален 3 Отделка штукатурка, планкен Дополнительно Терраса, Четырехскатная крыша Прочее - Планы помещений Первый этаж Прихожая - 4,25 м2 Холл - 9,86 м2 Спальня - 12,08 м2 Спальня - 10,26 м2 Спальня - 14,04 м2 Гостиная - 16,15 м2 Кухня - 8,65 м2 С/у - 6,48 м2 Бойлерная - 5,25 м2

 

Мы поможем вам с выбором!