ЖК МЕТЕОРА

г.Анапа, ул.Ленина, д.185А
ДОМ СДАН
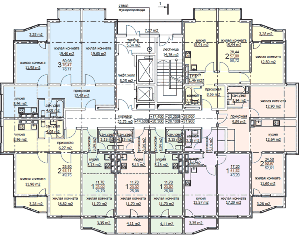
Кол-во этажей
16
Кол-во квартир
667
Площадь квартир
23,3 - 75,7 м²
Стоимость от
4 299 000 ₽
Проектная документация
  Жилой комплекс "Метеора" представлен пятью шестнадцатиэтажными зданиями с подземным паркингом на 60 машиномест.
В каждом подъезде по два лифта, пассажирский и грузопассажирский.Корпуса жилого комплекса  возводятся по технологии «Монолит-Кирпич».Для наружной отделки сегодня на рынке существует множество строительных материалов, но лучшее решение это конечно облицовочный кирпич. Эксплуатационные свойства данного материала отвечают высокой прочностью и морозостойкостью. К тому же, привлекательный внешний вид этого материала существенно сокращает затраты на окончательную отделку фасада.На первых этажах, жилого комплекса «Метеора», будут расположены коммерческие помещения под продуктовые и промтоварные магазины. Дворы оснащены местами отдыха, как для взрослых, так и для детей, а так же гостевыми парковочными зонами.Ограждать территорию не планируется, вокруг домов будет стандартное озеленение, гостевая парковка, детские площади и т.д.

Отделка квартир предчистовая:

  • пол - ровная бетонная стяжка;
  • стены - гипсовая штукатурка;
  • электричество разведено до розеток
  • канализация - трубы заведены до источников потребления;
  • водоснабжение - трубы заведены в квартиру;
  • отопление (центральное) - радиаторы отопления установлены и подсоединены к общей тепловой сети;
  • приборы учёта устанавливаются на отопление, водоснабжение, электричество.

менеджер Офис

+7 918 670-14-14

Квартиры в ЖК МЕТЕОРА

Квартиры в новостройках по специальной цене!