Дом 126 кв.м на участке 4.3 сот

Супсех, ул Онежская

Нас. пункт Супсех
Код объекта 52947
Назначение ИЖС
Всего комнат 3
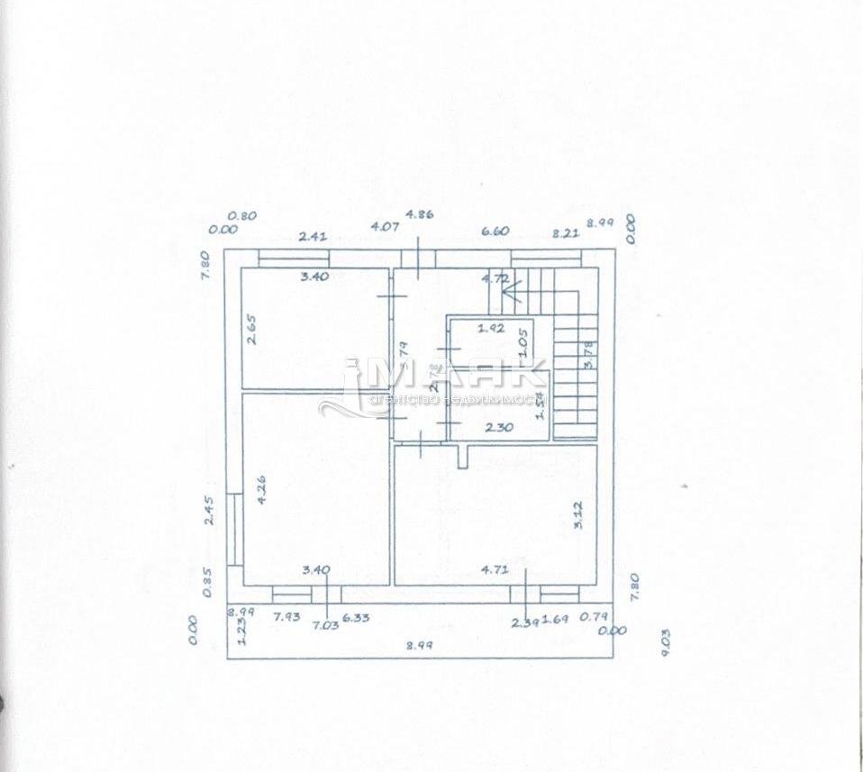
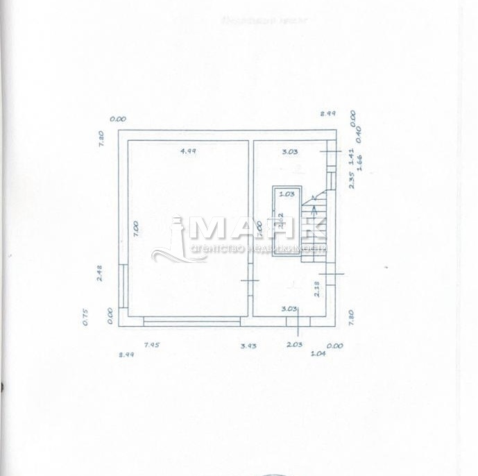
Площадь (м2) 126 / 70 / 31
Площадь участка 4.3 сот.
Фасад участка 15 м.
Этажей 2
Отопление инд. газовое
Газоснабжение центральное
Водоснабжение центральное
Канализация центральная
Электроснабжение есть
Ипотека да
Дата 24.01.2025

Описание

Продается двухэтажный коттедж в стиле “High-Tech” в качественной предчистовой отделке с частичным ремонтом, площадью 127 кв.м. на 4,3 сотках земли со своим бассейном, зоной барбекю и зоной отдыха.

В коттедже все продумано до мелочей:
- просторная гостинная, объединенная с кухней и столовой;
- элегантная спальня с выходом на балкон с видом на город и море;
- комната с выходом на балкон;
- гостевая спальня;
- санузел на первом этаже для хозяев и гостей, постирочная и котельная;
- раздельный санузел на втором этаже;
- 3 выхода из дома;
- крытая терраса с оборудованной бербекю зоной;
- благоустроенный двор;
- бассейн 3,5 на 6 метров;
- парковка на 2 машины во дворе и гостевая парковка на несколько машин рядом с домом;
- центральное газоснабжение, центральное водоснабжение, центральное отопление, центральная канализация.

Документы готовы к сделке!

Подходит ипотека и материнский капитал.

Возможен онлайн-показ в любое время!

Звоните!

#доманапа
#продажадома
#ипотека
#жизньнаморе
#переездванапу
#продажа #доманапа #застройщиканапа #ипотека #недвижимость #переездванапу
#застройщиканапа #застройщик #анапа #недвижимость #ипотека #москва #купитьдом #переездванапу #жизньнаморе
#агентствонедвижимости #работа #квартира #дом #realtor #wellcom #агентпонедвижимости #пермь #город #сделка #здание #сбербанк #новосибирск #продажа #realty #архитектура #участок #риэлторанапа #калининград #земля #элитнаянедвижимость

  • гараж

Заявка на покупку, продажу недвижимости

Маяк База

+7 918 670-14-14

Заинтересовал объект? Оставьте нам свою контактную информацию, мы перезвоним и расскажем подробнее

Похожие объекты

Продажа

Дом 180 кв.м на участке 7 сот

Супсех, ул Дружбы
15 500 000 руб.
Подробнее
Продажа

Дом 237.5 кв.м на участке 3 сот

Супсех, ул Леонова
13 500 000 руб.
Подробнее
Продажа

Дом 144 кв.м на участке 4.4 сот

Супсех, ул Терешковой
14 000 000 руб.
Подробнее
Продажа

Дом 185 кв.м на участке 5.5 сот

Супсех, ул Андрея Левинского
14 900 000 руб.
Подробнее
Продажа

Дом 142.2 кв.м на участке 5.53 сот

Супсех, ул Прибрежная
13 500 000 руб.
Подробнее

Мы поможем вам с выбором!