ЖК ГАРАНТ

Краснодарский край, г. Анапа, ул. Супсехское шоссе 47
ДОМ СДАН
Кол-во этажей
14
Кол-во квартир
279
Площадь квартир
31,59 - 85,76 м²
Стоимость от
8 500 000 ₽

Описание:

На Супсехском шоссе в Анапе, рядом с ЖК «Южный квартал», появилась новая строительная площадка, которая строится силами жилищно-строительного кооператива «Гарант». Жилой комплекс имеет одноимённое название - ЖК Гарант.

Согласно проекту планируется возвести два 14-этажных дома, стоящих друг за другом от дороги, а также 9-уровневый гараж, рассчитанный на 124 машиноместа. Кроме объектов капитального строительства на территории нового ЖК будут располагаться детские и спортивные площадки, зоны отдыха и наземная парковка.

В корпусе, который будет примыкать к шоссе, предусмотрены коммерческие помещения.

Условия покупки:

Данный жилой комплекс строится в соответствии с 215-ФЗ.

Правовой статус жилищно-строительного кооператива предполагает заключение договора паевого взноса на всю стоимость квартиры. То есть покупатель квартиры становится участником (пайщиком) кооператива.

Возможности привлечения ипотеки в таком случае нет, зато можно воспользоваться рассрочкой по довольно интересной схеме: 50% ‒ первоначальный взнос при вступлении в кооператив, остальные 50% ‒ при сдаче квартиры.

При покупке 3-комнатной квартиры в подарок предоставляется парковочное место.

Архитектурные особенности:

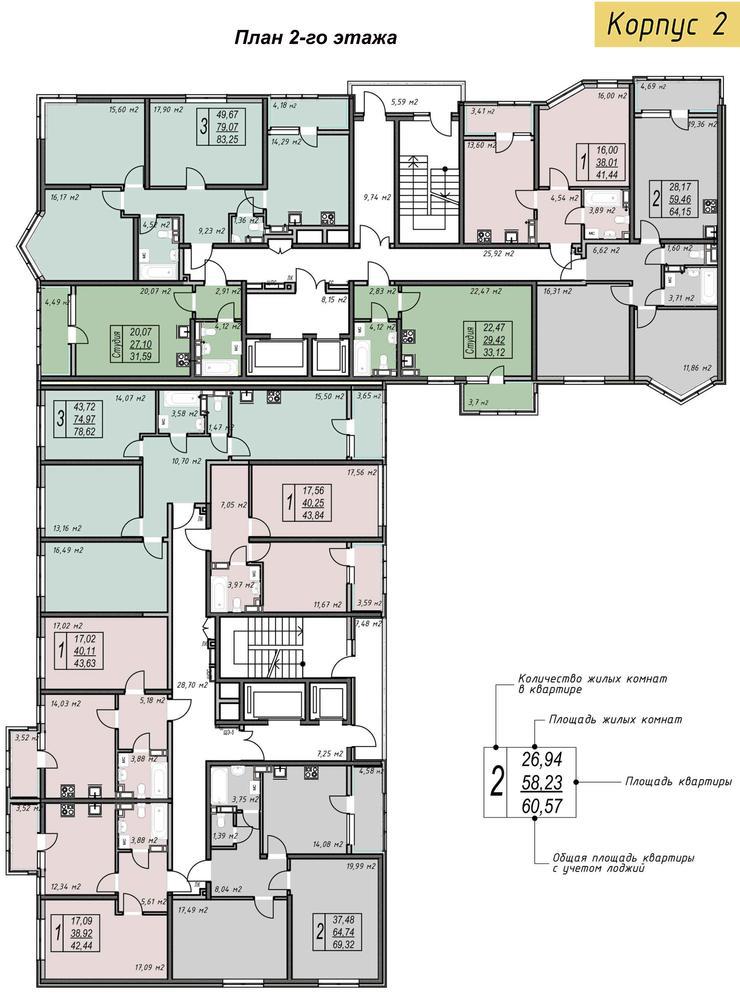
Жилой комплекс представляет собой два 14-этажных 2-подъездных корпуса Г-образной формы. В каждом подъезде по 2 лифта ‒ пассажирский и грузопассажирский.

Общее количество квартир ‒ 279.

В корпусе 1, расположенном ближе к дороге, 146 квартир:

  • студии ‒ площадью от 31,59 до 35,45 кв.м.;
  • 1-комнатные квартиры ‒ площадью от 41,44 до 43,69 кв.м.;
  • 2-комнатных квартир ‒ площадью по 62,3 и 64,15 кв.м.;
  • 3-комнатных квартир ‒ площадью по 82,02 и 85,67 кв.м.

Во втором корпусе 133 квартиры:

  • студии ‒ площадью по 31,59 до 33,12 кв.м.;
  • 1-комнатные квартиры ‒ площадью от 41,44 до 43,84 кв.м.;
  • 2-комнатных квартир ‒ площадью по 64,15 и 69,32 кв.м.;
  • 3-комнатных квартир ‒ площадью по 78,62 и 83,25 кв.м.

В квартирах просторные кухни-гостиные, площадью от 11,16 до 19,84 кв.м.

В зависимости от планировки, санузлы могут быть совмещёнными и раздельными. В некоторых 3-комнатных квартирах встречается 2 санузла.

Высота потолков ‒ 2,7 м.

Конструктивные и технические особенности:

Жилой комплекс строится по монолитно-каркасной технологии, с заполнением стен блоком (200 мм.) и утеплителем (100 мм.). Фасад вентилируемый, облицовка ‒ керамогранит.

Квартиры будут сдаваться в предчистовой отделке:

  • гипсовая штука стен;
  • финальная стяжка пола;
  • радиаторы отопления ‒ установлены (теплосчётчики в подъезде);
  • электрика заведена в квартиру (счётчики в подъезде);
  • выполнен ввод холодного и горячего водоснабжения, канализации (без установки приборов учёта);
  • входные двери ‒ строительные.

Инфраструктура:

Супсехское шоссе ‒ это магистраль, соединяющая Анапу с посёлком Супсех.

Территория вдоль шоссе очень привлекательна для анапских застройщиков ввиду своей транспортной доступности и равнинной местности. Рядом с жилым комплексом, в сторону Анапы, строятся корпуса ЖК «Южный квартал». Через дорогу ‒ ЖК «Горгиппия», пожалуй, самый масштабный жилищный проект в нашем городе.

Недалеко от будущего жилого комплекса располагается остановка нескольких автобусных маршрутов, охватывающих практически всю Анапу.

В шаговой доступности находится крупнейший в городе ТРЦ «Красная Площадь». До Южного рынка ‒ 1,7 км.

Вся социальная инфраструктура располагается в близлежащем 12 микрорайоне, в пределах 2-х километров.

Через дорогу, в I очереди ЖК «Горгиппия», функционирует муниципальный детский сад, до которого около 400 м. Когда будет сдан ЖК «Южный квартал», там распахнёт свои двери частный детский садик, и спортивный комплекс "World class".

В ближайшее десятилетие должен быть реализован проект по комплексному развитию микрорайона Горгиппия, что по другую сторону Супсехского шоссе. Здесь помимо новых жилых массивов обещают ввести в строй школы, детские сады, медицинские учреждения и объекты торговли.

До галечного пляжа на ул. 40 лет Победы ‒ 3,5 км. Напрямую, по улице Адмирала Пустошкина, до высокого берега моря около 1800 м. Возможно в этом месте появится оборудованный спуск к морю, по крайне мере разговоры о его постройке ведутся давно, но конкретной информации пока нет.

менеджер Офис

+7 918 670-14-14

Квартиры в ЖК ГАРАНТ

Квартиры в новостройках по специальной цене!